☎ 0650243228
ออกแบบอาคารอย่างสร้างสรรค์ ครบทั้งฟังก์ชันและดีไซน์ทันสมัย


บริการด้านการออกแบบ


บริการด้านการออกแบบ
บริการด้านการออกแบบ – สร้างสรรค์ด้วยความคิด ออกแบบด้วยความใส่ใจ
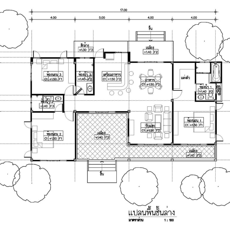
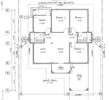
THE GRAND CONSTRUCTION 2025 ให้บริการด้านการออกแบบอาคารแบบครบวงจร โดยทีมสถาปนิกและวิศวกรมืออาชีพ ที่พร้อมร่วมวางแผน ออกแบบ และพัฒนาโครงการให้ตรงกับความต้องการของลูกค้า ทั้งในด้านความสวยงาม ฟังก์ชันการใช้งาน และความเป็นไปได้ทางวิศวกรรม
จุดเด่นบริการของเรา
ออกแบบตรงใจ ตอบโจทย์ทุกสไตล์
เราให้ความสำคัญกับเอกลักษณ์และความต้องการของลูกค้า เพื่อให้แบบอาคารที่ออกมาสอดคล้องกับไลฟ์สไตล์และงบประมาณอย่างลงตัววางแผนและออกแบบอย่างมืออาชีพ
ทีมงานของเราทำงานอย่างเป็นระบบ ตั้งแต่แนวคิดเบื้องต้น การออกแบบรายละเอียด ไปจนถึงการจัดทำแบบก่อสร้างที่ถูกต้องตามหลักวิศวกรรมใส่ใจในความสวยงามและฟังก์ชัน
เราผสมผสานความงามของดีไซน์เข้ากับการใช้งานจริง เพื่อให้ทุกพื้นที่เกิดประโยชน์สูงสุดทั้งในด้านความสะดวกสบายและความปลอดภัยใช้เทคโนโลยีการออกแบบสมัยใหม่
เราใช้ซอฟต์แวร์ออกแบบ 3D และเทคโนโลยีจำลองภาพเสมือนจริง เพื่อให้ลูกค้าเห็นภาพโครงการก่อนลงมือก่อสร้าง ช่วยให้ตัดสินใจได้อย่างมั่นใจให้คำปรึกษาอย่างครบถ้วนในทุกขั้นตอน
ตั้งแต่การออกแบบแนวคิดเบื้องต้น ไปจนถึงการจัดทำเอกสารขออนุญาตก่อสร้าง เราพร้อมดูแลให้ครบทุกขั้นตอนอย่างมืออาชีพ
© Copyright 2025 All Rights Reserved. www.thegrandconstruction2025.com